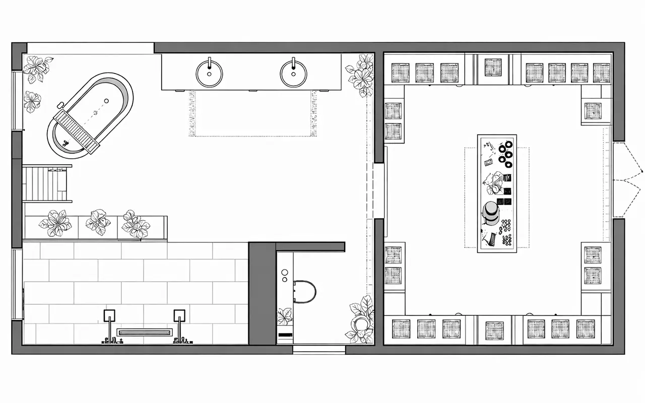
Casa HF - baño principal en residencia privada en Las Vegas diseñado por g3 studio

Casa HF

Las Vegas, EE.UU. · 2023

El proyecto formó parte de la renovación de una residencia privada ubicada en el exclusivo sector de Summerlin, al suroeste de Las Vegas. La intervención consistió en adecuar una habitación secundaria para transformarla en el nuevo baño y vestidor principal de la vivienda.

Se conservaron tres ventanales existentes que se abren hacia un jardín privado, integrando luz natural y vegetación al interior.

El mobiliario se organizó alrededor de un antiguo aparador familiar, restaurado y adaptado como mueble de lavamanos con un mesón en mármol crema marfil. Una bañera exenta se ubicó frente a las ventanas, reforzando la relación visual con el exterior. La ducha, delimitada por celosías de madera, aportó privacidad sin perder continuidad espacial.

Una paleta de materiales cálidos —madera natural, piedra y textiles neutros— generó una atmósfera serena donde lo contemporáneo y lo tradicional pueden convivir en equilibrio. El resultado fue un espacio íntimo y luminoso que combina funcionalidad con una conexión respetuosa al entorno.

UBICACIÓN

Las Vegas, EE.UU.

AÑO

2023

ÁREA

45 m²

COLABORADORES

g3 studio
LV.HC.

Planos de detalles